100) ? false : true; navIsShown = (window.pageYOffset > heroHeight) ? true : false; triggerTransitions = window.pageYOffset > (heroHeight / 2) ? true : false; if (navIsOpen && !atTop && !navIsShown) navIsOpen = false; ">
Toggle Navigation
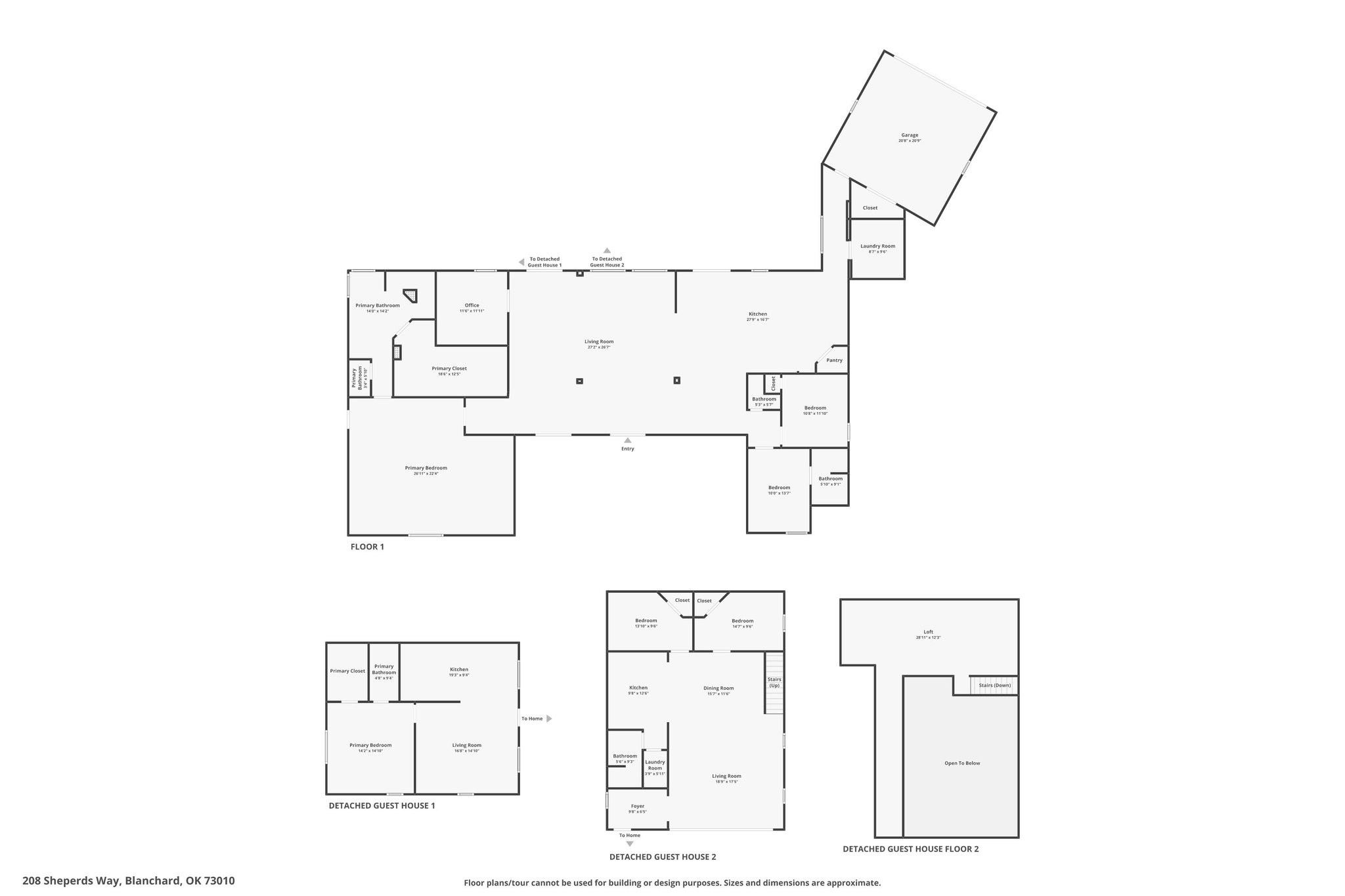
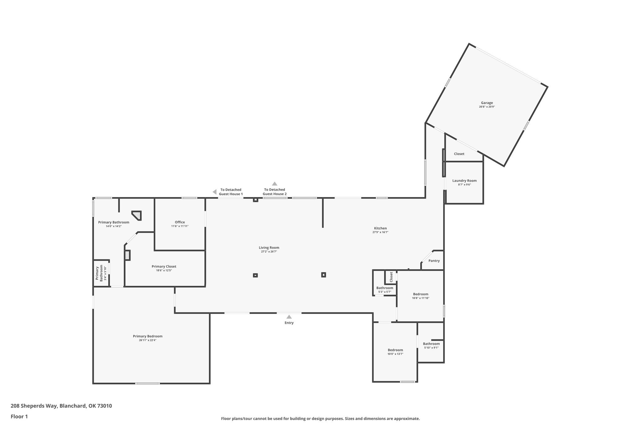
208 Sheperds Way, Blanchard, OK 73010
Images
Floor Plans
3D Tour
Map
Previous Slide
Next Slide
View Gallery
3D Tour
Slideshow
Photo Grid
Hide
Previous
Next
208 Sheperds Way
Blanchard, OK 73010
Images
Show more
Slideshow
Photo Grid
Hide
Previous
Next
Floor Plans
Slideshow
Photo Grid
Hide
Previous
Next
3D Tour